Situation
Descriptif
Bâtiments
Appartements
Contact
Situation
Descriptif
Bâtiments
Appartements
Contact
à louer
Appartements spacieux
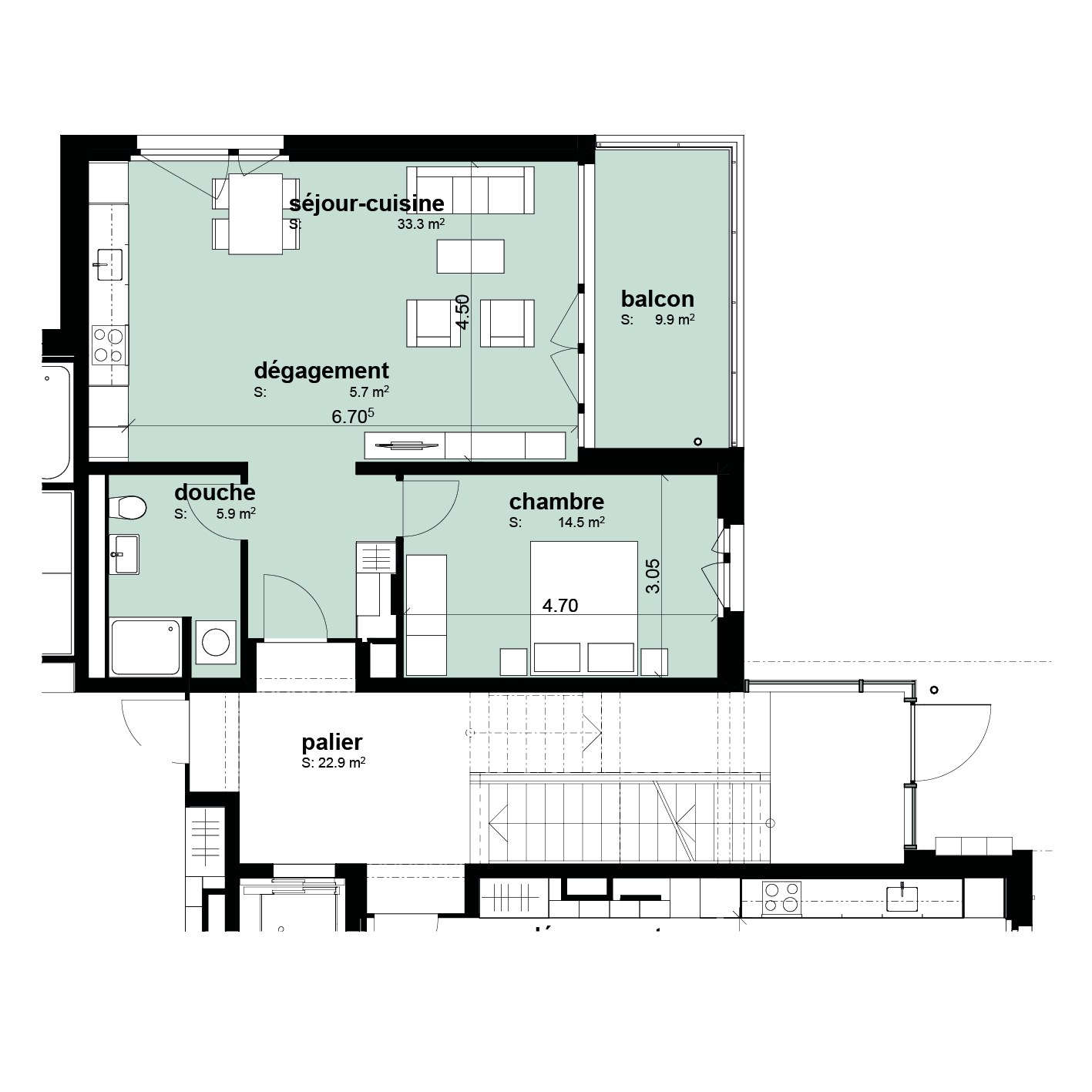
Appartement 1.23
2.5 PCES
58.10M
2
2ème
Balcon 9.9M
2
CHF 1'180 / mois
Afficher tous les appartements
Dossier
ça m'intéresse